




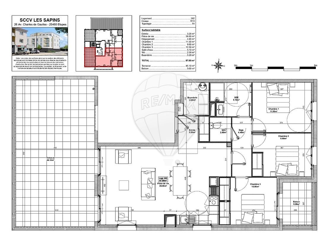
L’agence RE/MAX Privilèges vous propose un appartement T4 de 87 m², situé au 3e et dernier étage d’une résidence neuve à l’architecture moderne et soignée.
Il se compose d’une belle pièce de vie lumineuse ouverte sur une terrasse idéal pour profiter des beaux jours, trois chambres confortables, d’une salle d’eau moderne et d’un garage privatif pour plus de confort au quotidien.
Cet appartement est vendu en VEFA (Vente en l’État Futur d’Achèvement), vous permettant de bénéficier :
– des garanties constructeur (décennale, parfait achèvement, etc.)
– des frais de notaire réduits
– d’un logement aux dernières normes énergétiques.
Un bien idéal pour habiter ou investir !
Plus d’informations sur demande – réservez dès maintenant votre futur chez-vous.