


PROGRAMME NEUF À MONTBÉLIARD ! LES RIVES DOUCES !
APPARTEMENT T3 à partir de 219.000€
Entre nature et centre-ville, découvrez un cadre de vie unique où calme, confort et modernité se rencontrent.
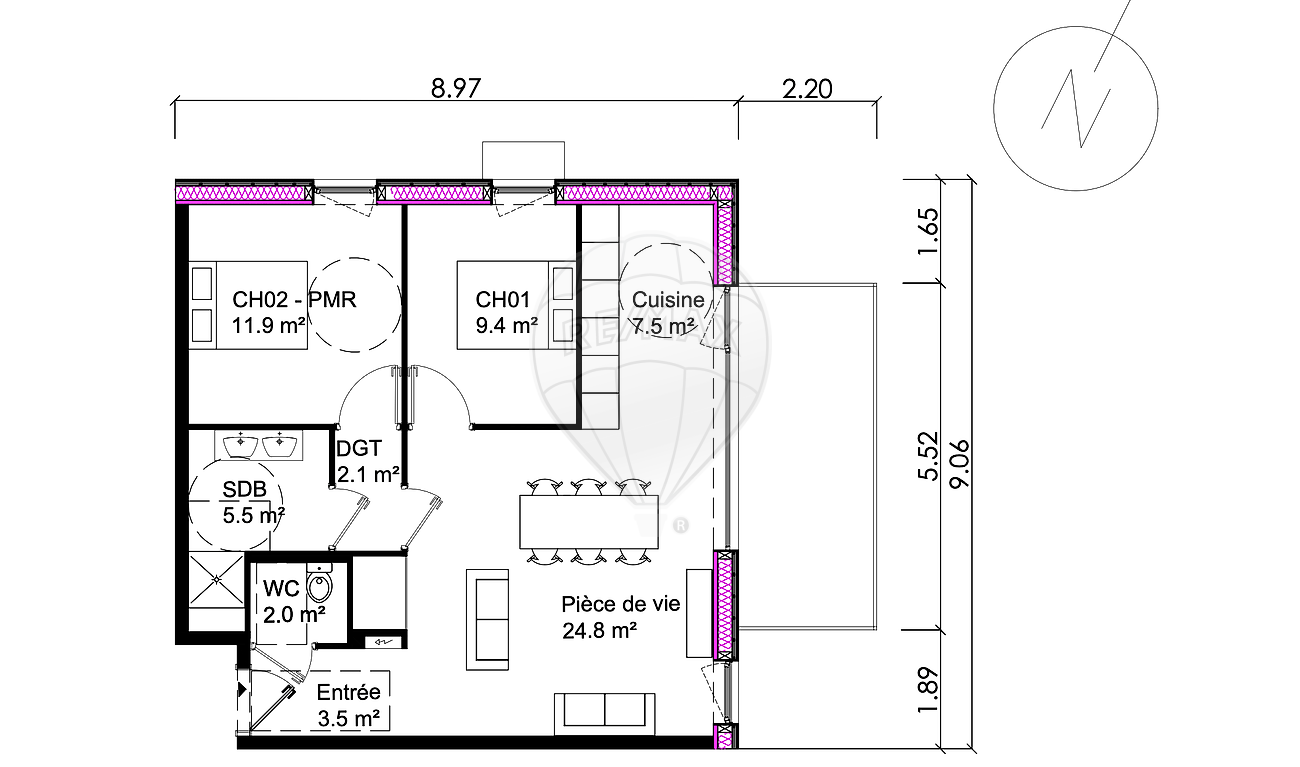
Découvrez ces appartements de type T3 allant de de 61,2 m² à 86,4 m² de surface avec plusieurs types d’aménagements différents (plans en agence ou sur demande).
Séduit par son agencement optimisé, ses prestations de qualité et sa lumière naturelle omniprésente.
Chaque appartement bénéficie d’une terrasse.
Place de parking privative en supplément.
Les prestations haut de gamme garantissent un confort durable :
– Interphone vidéo
– Chauffage individuel,
– Peinture blanche lisse, sols PVC haut de gamme,
– Menuiseries aluminium double vitrage
– Eligible PTZ.
– Finitions personnalisables
Disponible sur demande :
– Plaquette commerciale
– Contrat de réservation en VEFA
– Catalogue des prestations intérieures (porte, peintures, sols, etc…)
✔️ Résidence sécurisée avec ascenseur et stationnement privatif possible en supplément
✔️ Personnalisation possible des finitions (sols, murs, menuiseries)
✔️ Proximité immédiate du centre-ville, des écoles et des axes principaux
À deux pas du centre-ville, du parc du Près-la-Rose et de la gare SNCF, pour plus de renseignements contactez-nous sans plus tarder.